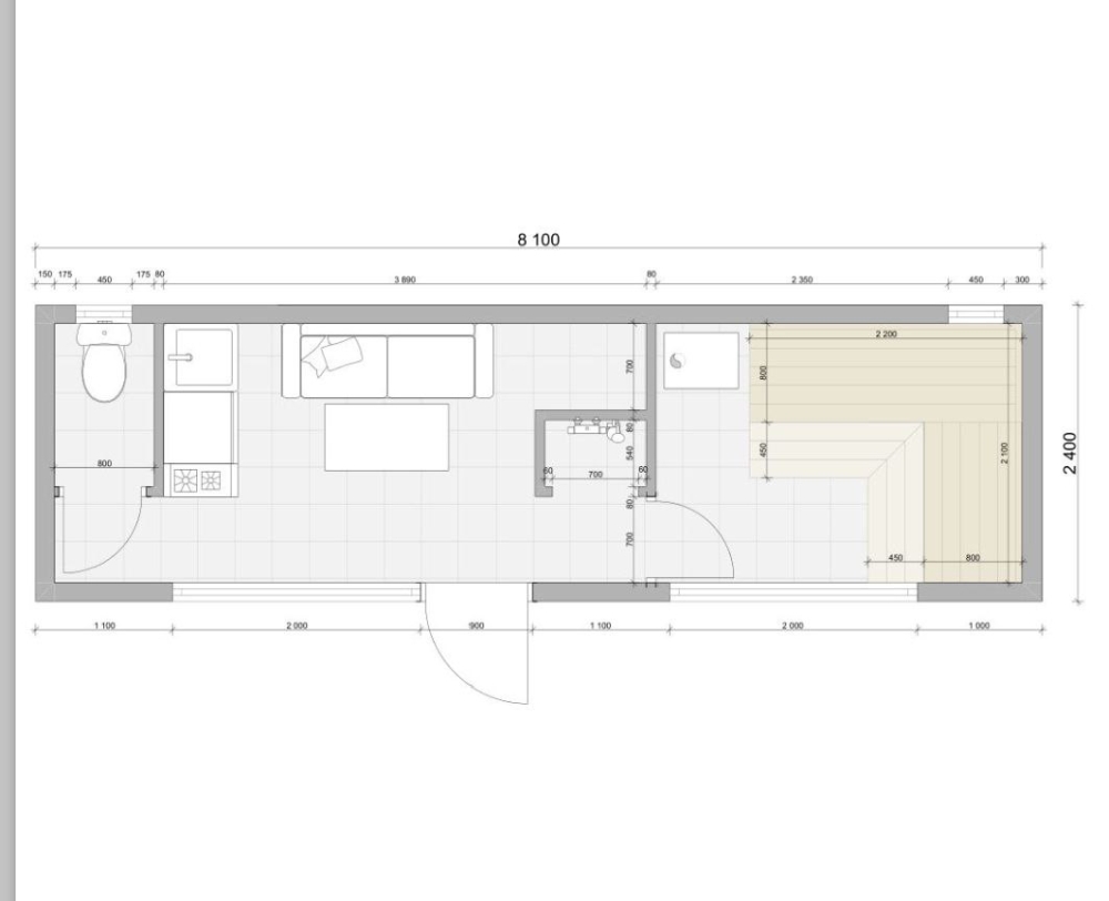
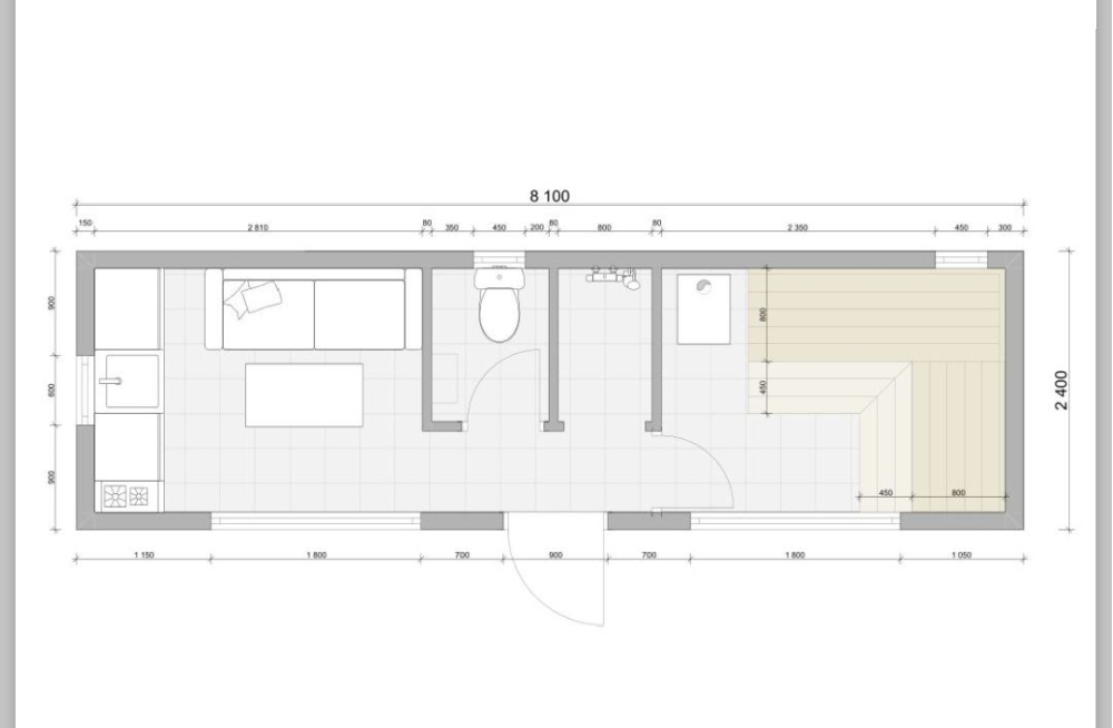
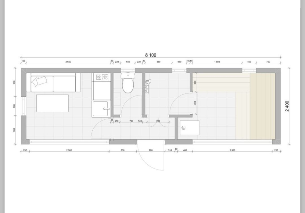
Модуль
Стены и потолок утепляются пенополиуретаном (ППУ) 35мм, стены в парной дополнительно утепляются базальтом 27мм.
Пол утепляется экструдированным пенополистиролом (ЭППС) 50мм.
Электрические полы во всех помещениях. Электрика в гофре, встроенные розетки и выключатели.
Сантехника, водорозетки на тропический душ, электро бойлер 50л, кухонная зона, гигиенический душ в парной.
Канализация из душевой, парной, санузел, кухонной зоны.
Парная
Стены, потолок: липа сорт А/Б.
Полог: липа или термосина.
Вытяжка приточная вентиляция.
Панорамное окно 100 или 50%.
Подсветка полога.
Окно для залпового проветривания.
Печь дровяная или электрическая на выбор.
Отделка печной зоны природным камнем.
Дверь стеклянная матовая.
Душевая
Полы и стены отделаны плиткой цвет: графит.Потолок: вагонка штиль сорт А/Б, 2 точечных светильника. Дверь стеклянная матовая.
Туалет
Стены, потолок: вагонка штиль сорт А/Б.Пол: плитка, цвет: графит.
Унитаз. Бойлер 50л.
Вентиляция.
Освещение: 2 спота трехточечный. Дверь стеклянная матовая.
Фасад
Отделка лицевой стороны: лиственный планкен сорт А/Б.4 уличных фасадных светильника, Розетка для гирлянды.
Комната отдыха
Входная группа панорамная.Стены, потолок: вагонка штиль сорт А/Б. Пол: плитка, цвет: графит.
Базовая комплектация: 8 х 2,45 х 2,5м
- Модель: AO
- Наличие: Есть в наличии
-
1800000р.






